Modele constructii case
Casa Clinton5
Date tehnice:
Regim de inaltime:
p+m
Amprenta pe sol:
80mp;
Suprafata totala:
160 mp;
Suprafata utila:
128 mp;
Numar bai:
2
Numar dormitoare:
3
Comanda gratuit proiectul
Casa Clive5
Date tehnice:
Regim de inaltime:
p+e+m
Amprenta pe sol:
100.44mp;
Suprafata totala:
260 mp;
Suprafata utila:
208 mp;
Numar bai:
2
Numar dormitoare:
5
Comanda gratuit proiectul
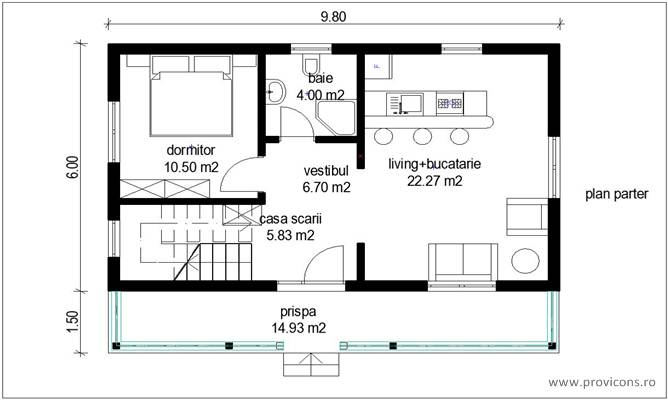
Casa Codrin5
Date tehnice:
Regim de inaltime:
p+m
Amprenta pe sol:
58.8mp;
Suprafata totala:
117.6 mp;
Suprafata utila:
94.08 mp;
Numar bai:
2
Numar dormitoare:
3
Comanda gratuit proiectul
Casa Codrut5
Date tehnice:
Regim de inaltime:
p
Amprenta pe sol:
17mp;
Suprafata totala:
17 mp;
Suprafata utila:
13.6 mp;
Numar bai:
1
Numar dormitoare:
1
Comanda gratuit proiectul
Casa Codruta5
Date tehnice:
Regim de inaltime:
p+m
Amprenta pe sol:
58.8mp;
Suprafata totala:
117.6 mp;
Suprafata utila:
94.08 mp;
Numar bai:
2
Numar dormitoare:
3
Comanda gratuit proiectul
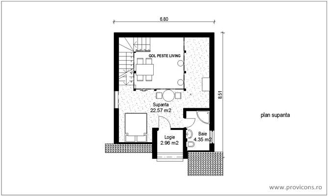
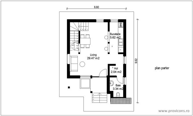
Casa Cody5
Date tehnice:
Regim de inaltime:
p+supanta
Amprenta pe sol:
51mp;
Suprafata totala:
88 mp;
Suprafata utila:
70.4 mp;
Numar bai:
2
Numar dormitoare:
1
Comanda gratuit proiectul
Casa Cojocaru5
Date tehnice:
Regim de inaltime:
p
Amprenta pe sol:
153mp;
Suprafata totala:
153 mp;
Suprafata utila:
122.4 mp;
Numar bai:
3
Numar dormitoare:
3
Comanda gratuit proiectul
Casa Collin5
Date tehnice:
Regim de inaltime:
p
Amprenta pe sol:
18mp;
Suprafata totala:
18 mp;
Suprafata utila:
14.4 mp;
Numar bai:
0
Numar dormitoare:
1
Comanda gratuit proiectul
Casa Colton5
Date tehnice:
Regim de inaltime:
p+m
Amprenta pe sol:
129mp;
Suprafata totala:
217 mp;
Suprafata utila:
173.6 mp;
Numar bai:
4
Numar dormitoare:
4
Comanda gratuit proiectul
ccccccccccccccccccccccccccccccccccccccccccccccccccccccccccccccccccccccccccccccccccccccccccccccccccccccccccccccccccc